The Chalet Edit logo
Home / Switzerland / Verbier / Chalet Breithorn, Verbier

Chalet Breithorn, Verbier

Available Services: Self-catered / Accommodation only

Share Chalet via Email

Key Features

Guests: 8
4 Bedrooms
4 Bathrooms
3100m to resort centre

Editor's Review

Charming, eclectic and located in of the more desirable areas in Verbier, Chalet Breithorn is a fabulous new chalet boasting incredible views and cosy living  - ideal for a luxury ski holiday with friends and family. What’s more, you’re close to the Les Esserts slope, so getting out in the morning is a breeze.

Overview

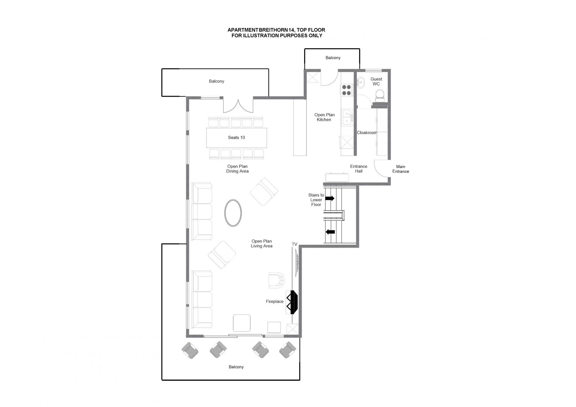
Perched above the village and close to the Les Esserts slope is where you will discover the Chalet Breithorn, a luxury chalet apartment in Verbier. This rustic duplex apartment is perfectly positioned for you to enjoy sweeping views across the town and the mountains beyond.

The open-plan living and dining area was designed with comfort and entertaining in mind. Spend your evenings here on the sumptuous sofas, in front of the fire whilst exchanging stories about the day. The whole space is eclectically decorated with antiques, collectables, artwork and books from the owner’s travels, which give the space a homely atmosphere. High, vaulted, beamed ceilings in a beautiful grey-washed wood give the space an elegant feel, and french doors open out onto a wonderful south-facing balcony with panoramic views, the perfect spot to enjoy a sunset apéritif.


There is a fully equipped kitchen, tucked away behind the dining area, which makes your self-catered ski holiday easy and enjoyable. The dining area seats eight comfortably, and the statement dining table provides an interesting focal point in the room.

Chalet Breithorn sleeps up to 8 guests, in four individually designed bedrooms. Each one has balcony access, ideal for enjoying your morning cup of coffee as you prepare for the day ahead. The bedrooms continue the theme from upstairs, with fascinating artwork and installations such as a large petrified tree trunk above one of the beds. All but one en-suite contains bath and shower combos, whilst the last has a spacious shower.

Chalet Details

FACILITIES

  • Balconies
  • Outdoor seating
  • Terrace
  • Fireplace
  • TV
  • Sonos
  • Wi-Fi
  • Indoor parking
  • Shared ski room

BEDROOM LAYOUT

FIRST FLOOR 

Bedroom 1. 1 x Double with en-suite bathroom. Private balcony.

Bedroom 2. 1 x Double with en-suite shower room.  Shared balcony. 

Bedroom 3. 1 x Double with en-suite bathroom. Shared balcony.

Bedroom 4. 1 x Double with en-suite bathroom. Shared balcony.

KIDS

Chalet Tire Bouchon is a fantastic luxury ski chalet for families. The open plan living and dining area means that everyone can spread out and the parents can set the kids up with a film whilst they enjoy an evening meal at the dining table.

Fancy some extra time skiing during the day, or a night out exploring the nightlife? The Chalet Edit in-house concierge team can assist with pre-arranging babysitters and childcare.

GUEST EXPERIENCE

Situated in pristine mountain villages that boast fantastic restaurants, vibrant nightlife, and excellent skiing opportunities, this owner exclusively offers the finest selection of private residences available for rent in the Alps. With over 11 years of experience, they are experts in the renowned destinations such as Verbier, Zermatt, Val d'Isère, Courchevel, Méribel, Megève, Lech, and St. Anton.

To deliver the highest levels of service in these ultra-luxury ski chalets, they have assembled a team of experienced professionals dedicated to meeting the unique needs of each of their guests with the utmost passion and attention to detail.

Situated in pristine mountain villages that boast fantastic restaurants, vibrant nightlife, and excellent skiing opportunities, this owner exclusively offers the finest selection of private residences available for rent in the Alps. With over 11 years of experience, they are experts in the renowned destinations such as Verbier, Zermatt, Val d'Isère, Courchevel, Méribel, Megève, Lech, and St. Anton.

To deliver the highest levels of service in these ultra-luxury ski chalets, they have assembled a team of experienced professionals dedicated to meeting the unique needs of each of their guests with the utmost passion and attention to detail.

Location

Chalet Breithorn is located just off Route de Golf in one of the most desirable neighbourhoods in Verbier. You are a 10-minute walk from Les Esserts and a 10-minute drive from Medran. The nearest airport is Geneva, 1 hour 30 minutes away, and Aosta Valley Airport, 1 hour 30 minutes away.

Pricing & Availability

November 2025

2 Nov - 7 Nights

CHF 7,610

9 Nov - 7 Nights

CHF 7,610

16 Nov - 7 Nights

CHF 7,610

23 Nov - 7 Nights

CHF 7,610

30 Nov - 7 Nights

BOOKED

December 2025

7 Dec - 7 Nights

BOOKED

14 Dec - 7 Nights

BOOKED

21 Dec - 7 Nights

CHF 21,450

28 Dec - 7 Nights

CHF 35,910

January 2026

4 Jan - 7 Nights

BOOKED

11 Jan - 7 Nights

CHF 13,950

18 Jan - 7 Nights

CHF 13,950

25 Jan - 7 Nights

CHF 13,950

February 2026

1 Feb - 7 Nights

CHF 13,950

8 Feb - 7 Nights

CHF 18,050

15 Feb - 7 Nights

POA

22 Feb - 7 Nights

BOOKED

March 2026

1 Mar - 7 Nights

POA

8 Mar - 7 Nights

CHF 13,950

15 Mar - 7 Nights

CHF 13,950

22 Mar - 7 Nights

CHF 13,950

29 Mar - 7 Nights

CHF 13,950

April 2026

5 Apr - 7 Nights

CHF 13,950

12 Apr - 7 Nights

CHF 10,040

19 Apr - 7 Nights

CHF 10,040

26 Apr - 7 Nights

CHF 10,040

Pricing based on

Exclusive use of the property for up to 8 guests.

Included with The Chalet Edit

Personalised complimentary pre-arrival concierge service to assist with booking

  • Transfers
  • Childcare
  • Ski lessons and Guides
  • Private Jets
  • Helicopters
  • Special Events

You May Also Like

+44 208 133 1130

Subscribe To Our Newsletter

Subscribe to our newsletter to get the latest news, exclusive offers, and holiday inspiration.